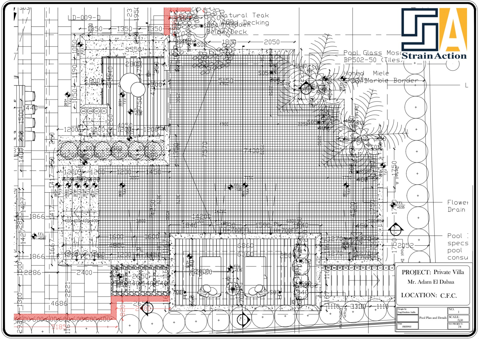
حمام سباحة بكايرو فستيفال سيتي

 تاريخ اتمام المشروع

23/2/2022

الموقع 

كايرو فستيفال سيتي - القاهرة

 وصف المشروع 

عمل تصميم إنشائي متكامل حمام سباحة في كايرو فستيفال سيتي . تم عمل التصميم الإنشائي الأمن و الإقتصادي وفقاً لمعاير و قوانين الكود المصري للتصميم و تنفيذ المنشأت الخرسانية

و عمل حصر كامل للمشروع و شوب دروينج كامل

المشروع علي مساحة 127 متر مربع 

-----------------------------------------

 strain action

شركة متخصصة في أعمال التصميمات الهندسية و اعمال المكتب الفني و الإشراف علي المشروعات الهندسية 

 

 

تواصل معنا

أترك رسالتك وسيتم التواصل معك فى اقرب وقت .

Strain Action

شركة متخصصة في أعمال التصميمات الهندسية و اعمال المكتب الفني و الإشراف علي المشروعات الهندسية - كما لدينا قسم خاص بالتدريب و الكورسات الهندسية موجه لطلاب كليات الهندسة المدنية و المهندسين حديثي التخرج

البريد الألكترونى

info@strain-action.com

رقم الهاتف

01117200725
Loading
Your message has been sent. Thank you!